Startseite
Firma Angebot Projekte Typenhaus Immobilien Kontakt Links Gästebuch


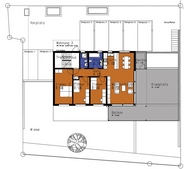
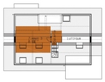
Mehrfamilienhaus "Typ Grüt"


     

   

 
                 
Architekturbüro:
Telefon:
Fax:
E-Mail:

Art:
Grundstück:
Grundstücksdfläche
GVZ:
Wohnfläche(NWF inkl. IW, ohne AW):
Rauminhalt (SIA):
Planungszeit:
Baubeginn bis Bezug:
SB Swissbau AG
044/972 36 72
044/972 36 73
Info@swissbau-ag.ch

Mehrfamilienhaus mit 5 Wohnungen
Wohnzone 1,6m3/m2
675m2
2359m3
556m2

1-3 Monate
11 Monate
zurück



Suchmaschinenoptimierung, Design und CMS von Inware AG